Обяви За нас Контакти
Продава 2-СТАЕН
област Бургас, с. Равда
76 500 €
149 621.00 лв.

(1 297 €, 2 536.71 лв./m2)
Цената е с включено ДДС
История на цената
Публикувана в 12:00 на 8 ноември, 2025 год.
Обявата е посетена 29 пъти.
Площ:
59 m2
Етаж:
2-ри от 5
Газ:
НЕ
ТEЦ:
НЕ
Строителство:
Тухла, Ще бъде въведен в експлоатация 2027 г.

Описание на имота:


LUXIMMO FINEST ESTATES: www.luximmo.bg
Представяме за продажба двустаен апартамент в новострояща се жилищна сграда с елегантен дизайн, на 5 минути от плажа в Равда. Близо до спирки на градския транспорт, супермаркет Lidl, магазини, спортен терен и други удобства.

В процес на строителство.
Очакван Акт 16 - май 2027 г.

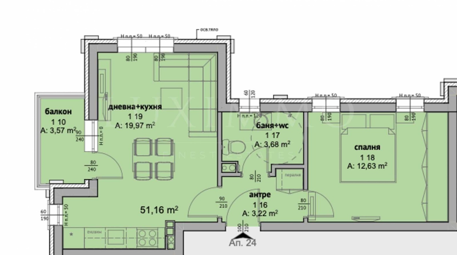
Имотът е с площ от 59,04 кв.м, разположен на 2-ри етаж, с високи тавани и панорамни прозорци, осигуряващи светлина през целия ден.

Разпределение:
антре;
всекидневна с кухня;
спалня;
баня с тоалет;
тераса.

Жилището се издава в степен на завършеност до ключ , качествено ново строителство. Подходящо е както за лично, целогодишно ползване, така и за инвестиция.

Комплексът ще разполага с барбекю зона, детски кът, паркоместа и подземни гаражи, което осигурява комфорт и удобство за живущите.

Без такса поддръжка.

Равда е предпочитано място за отдих и целогодишно живеене спокойно, уютно курортно селище, разположено само на 4 км от Несебър и на 33 км от Бургас, с дълга плажна ивица, подходяща както за почивка, така и за водни спортове.

Очакваме Вашето запитване

Ако желаете да организирате оглед на имот, който Ви интересува, или да посетите някой от нашите офиси, моля свържете се с нас. За да уговорите ден и час за среща или оглед, можете да се обадите на посочения в обявата телефон или да изпратите запитване чрез електронната поща. Нашият консултант ще Ви съдейства с всички необходими подробности и ще уговори удобно за Вас време.

Търсите подходящия за Вас имот?

Не се колебайте да се свържете с нас и да ни разкажете за Вашите нужди и предпочитания. Нашият екип ще проведе задълбочено проучване на пазара, за да Ви предложи имоти, които точно отговарят на Вашите критерии. Разполагаме с изключително портфолио от висококачествени и ексклузивни жилища, които са достъпни само за нашите клиенти. За да сте първите, които ще получите информация за тях свържете се с нас.

Допълнителни услуги

Като ценен клиент на ...

За повече информация свържете се с нас и цитирайте референтния номер на имота. Моля, кажете, че сте видeли обявата в този сайт.
Референтен номер: LXH-135675
Тел: 0885 186 761, 0554 5 86 47
Отговорен брокер:Християн Димитров
Виж всички обяви в luximmoburgas.bazar.bg или тук
Особености
Тухла
За контакт:
0885186761
Брокер:
Християн Димитров
0885 186 761
Още оферти от брокера: Продава | Дава под наем | Купува | Наема
Агенция:
ЛУКСИММО - БУРГАС
056 987 087; 0882 813 612
ЛУКСИММО - БУРГАС logo
Медал за прослужено време
В imot.bg от 2018 г.
luximmoburgas.imot.bg
Адрес:
област Бургас, гр. Бургас, гр. Бургас, Tърговски комплекс 'Кирил и Методий', ул. 'Генерал Скобелев' 10
ИЗПРАТИ ЗАПИТВАНЕ
ИЗПРАТИ ЗАПИТВАНЕТО

Продава 2-СТАЕН
област Бургас, с. Равда
Обява: 1b176259603446454

76 500 €
149 621.00 лв.
История на цената
(1 297 €, 2 536.71 лв./m2)

Цената е с включено ДДС
ЗАПАЗИ ОБЯВАТА

Местоположение: област Бургас, с. Равда