Обяви За нас Контакти
Продава КЪЩА
област Бургас, с. Лозенец
289 000 €
565 234.87 лв.

(1 784 €, 3 489.20 лв./m2)
Цената е с включено ДДС
История на цената
Коригирана в 13:08 на 11 февруари, 2026 год.
Обявата е посетена 395 пъти.
Площ:
162 m2
Двор:
182 m2
Газ:
НЕ
ТEЦ:
НЕ
Строителство:
Тухла, 2026 г.

Описание на имота:


LUXIMMO FINEST ESTATES: www.luximmo.bg
Представяме за продажба триетажна еднофамилна къща, на 100 метра от морския бряг в местността Тарфа на с. Лозенец.

В процес на строителство.
Очакван Акт 16 - декември 2027 г.

Имотът е с РЗП - 162,40 кв.м с прилежащ двор с площ от 182 кв.м, с предвидени две паркоместа и изграждане на открит басейн.

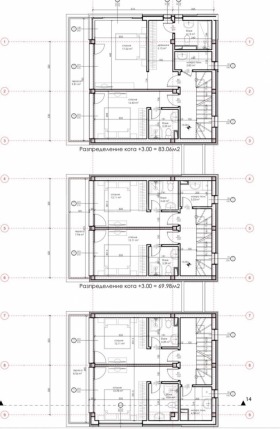
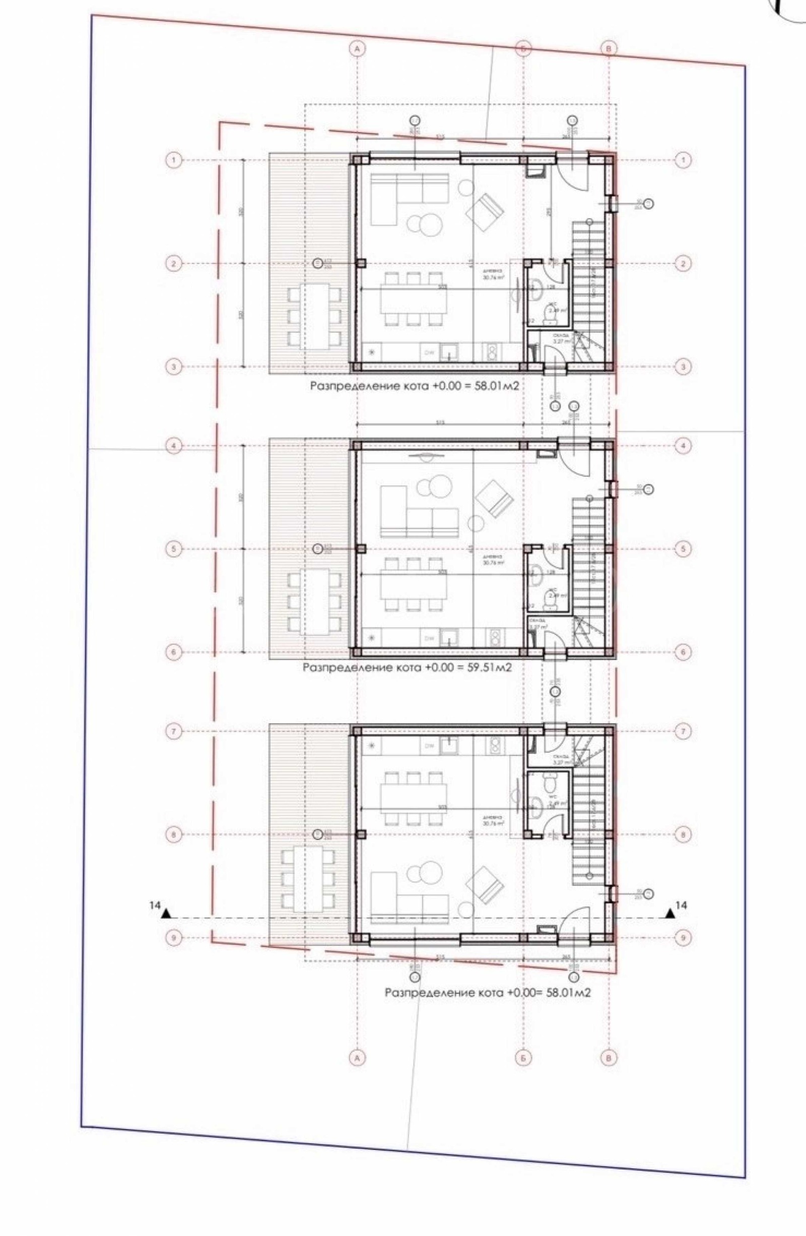
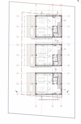
Разпределение:
етаж 1: входно антре, всекидневна с трапезария и кухня, тоалет, склад, веранда;
етаж 2: две спални, дрешник, две бани, мокро помещение, тераса към двете спални;
етаж 3: покривна тераса с площ 83 кв.м и гледка море.

Предлага се в степен на завършеност по БДС:
стоманобетонна конструкция;
тухлена зидария Wienerberger;
плосък покрив с топлоизолация 10 см.
циментова замазка и хидроизолация от най-висок клас (ТПО);
фасада с минерална силиконова мазилка;
естествен фасаден камък и ламели от композитно дърво;
дограма висок клас с троен стъклопакет четири сезона;
стени на варо-циментова дишаща мазилка с цвят по избор на клиента;
под на циментова замазка с 5 см топлоизолация под нея и подово отопление;
бани на подова замазка и стени с варо-циментова мазилка;
ел. инсталация, ВиК инсталация;
инсталация за отопление, вентилация и климатизация;
извод за камина;
монтирана входна врата.

Има възможност за довършителни работи и цялостно обзавеждане на къщата.

* Предлаганият имот е къща 1.

Очакваме Вашето запитване

Ако желаете да организирате оглед на имот, който Ви интересува, или да посетите някой от нашите офиси, моля свържете се с нас. За да уговорите ден и час за среща или оглед, можете да се обадите на посочения в обявата телефон или да изпратите запитване чрез електронната поща. Нашият консултант ще Ви съдейства с всички необходими подробности и ще уговори удобно за Вас време.

Търсите подходящия за Вас имот?

Не се колебайте да се свържете с нас и да ни разкажете за Вашите нужди и предпочитания. Нашият екип ще проведе задълбочено проучване на пазара, за ...

За повече информация свържете се с нас и цитирайте референтния номер на имота. Моля, кажете, че сте видeли обявата в този сайт.
Референтен номер: LXH-137094
Тел: 0882 813 612, 056 987 087
Отговорен брокер:Христо Вълчев
Особености
Тухла
С паркинг
За контакт:
0882813612
Брокер:
Христо Вълчев
0882 813 612
Още оферти от брокера: Продава | Дава под наем | Купува | Наема
Агенция:
ЛУКСИММО - БУРГАС
056 987 087; 0882 813 612
ЛУКСИММО - БУРГАС logo
Медал за прослужено време
В imot.bg от 2018 г.
luximmoburgas.imot.bg
Адрес:
област Бургас, гр. Бургас, гр. Бургас, Tърговски комплекс 'Кирил и Методий', ул. 'Генерал Скобелев' 10
ИЗПРАТИ ЗАПИТВАНЕ
ИЗПРАТИ ЗАПИТВАНЕТО

Продава КЪЩА
област Бургас, с. Лозенец
Обява: 1j176838483762315

289 000 €
565 234.87 лв.
История на цената
(1 784 €, 3 489.20 лв./m2)

Цената е с включено ДДС
ЗАПАЗИ ОБЯВАТА

Местоположение: област Бургас, с. Лозенец